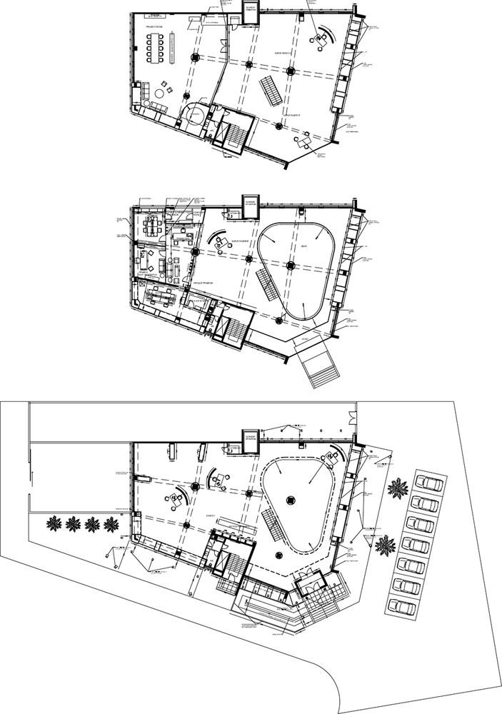
We were assigned to re-design a large building on Alimou Avenue, for Klimafot, a company that designs, manufactures and sells lighting fixtures. The owners expressed from the beginning their wish to differentiate from the buildings of similar companies.